Sprzedaż Tylko u nas
Nowoczesny dom bliźniak z garażem – cisza, przestrzeń i szybki dojazd do Koszalina
  • 680,000PLN

Opis

Na sprzedaż domy jednorodzinne w zabudowie bliźniaczej w Nowych Bielicach, gm. Biesiekierz. Idealna propozycja dla rodzin z dziećmi, osób pracujących w Koszalinie oraz wszystkich, którzy cenią spokój, nowoczesne rozwiązania i funkcjonalny układ pomieszczeń. Dom według projektu Dom w szachownicach – o powierzchni 129,7 , składający się z:

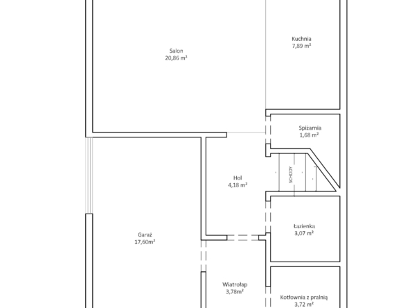
Parter:

  • wiatrołap 3,78 m²,
  • kotłownia z pralnią 3,72 m²,
  • hol 4,18 m²,
  • łazienka 3,07 m²,
  • spiżarnia 1,68 m²,
  • kuchnia 7,89 m²,
  • salon 20,86 m²,
  • garaż 17,60 m²,

Poddasze:

  • 4,67 m²,
  • pokój 12,00 m²,
  • pokój 12,07 m²,
  • łazienka 5,50 m²,
  • pokój 15,66 m²,
  • pokój 12,57 m²,
  • schody 4,45 m². 

Powierzchnia netto domu bez kotłowni, garażu – 108,38 m². 

Dom zostanie oddany w stanie deweloperskim, budynek ogrzewany piecem na pellet i kominkiem. 

Media: prąd, woda – studnia, szambo. 

Powierzchnia działki: 500 m²

Nowe Bielice to jedna z najbardziej pożądanych lokalizacji w okolicach Koszalina – łącząca ciszę i bliskość natury z szybkim dostępem do pełnej infrastruktury miejskiej. W okolicy znajdują się tereny spacerowe, ścieżki rowerowe oraz zabudowa jednorodzinna. Miejscowość położona jest tuż obok miasta, co zapewnia szybki i wygodny dojazd do jego centrum.

Prezentowana wizualizacja ma charakter wyłącznie poglądowy. 

Zapraszamy do kontaktu! 

Pomagamy w uzyskaniu kredytu hipotecznego!

WYKONUJEMY RÓWNIEŻ REMONTY MIESZKAŃ I DOMÓW W WYSOKIM STANDARDZIE NA ŻYCZENIE KLIENTA! PONADTO DLA NASZYCH KLIENTÓW PRZY PRZEPROWADZKACH OFERUJEMY TANI TRANSPORT.

Powyższy opis ma charakter informacyjny i nie stanowi oferty handlowej w rozumieniu Kodeksu Cywilnego, a dane w nim podane mogą ulec zmianie.

Szczegóły

ID Nieruchomości
500922
Rozmiar nieruchomości
108,38 m²
Powierzchnia terenu
500 m²
Zaktualizowano na 13 stycznia, 2026 w 3:30 pm

Adres

  • Adres Malw
  • Miasto Biesiekierz
  • Województwo Zachodniopomorskie
  • Kod pocztowy 76-039
  • Obszar Koszalin-Nowe Bielice

Informacje kontaktowe

Piotr Woźniak
  • Piotr Woźniak
  • 609 675 935 609 675 935
Wyświetl oferty

Zapytaj o tę nieruchomość

Compare listings

Porównać
Piotr Woźniak
  • Piotr Woźniak