Sprzedaż Tylko u nas
Wyjątkowa inwestycja! 3 mieszkania w 1 — stopa zwrotu 10% rocznie! Możliwa zamiana
  • 549,000PLN

Opis

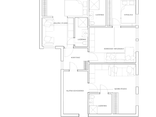
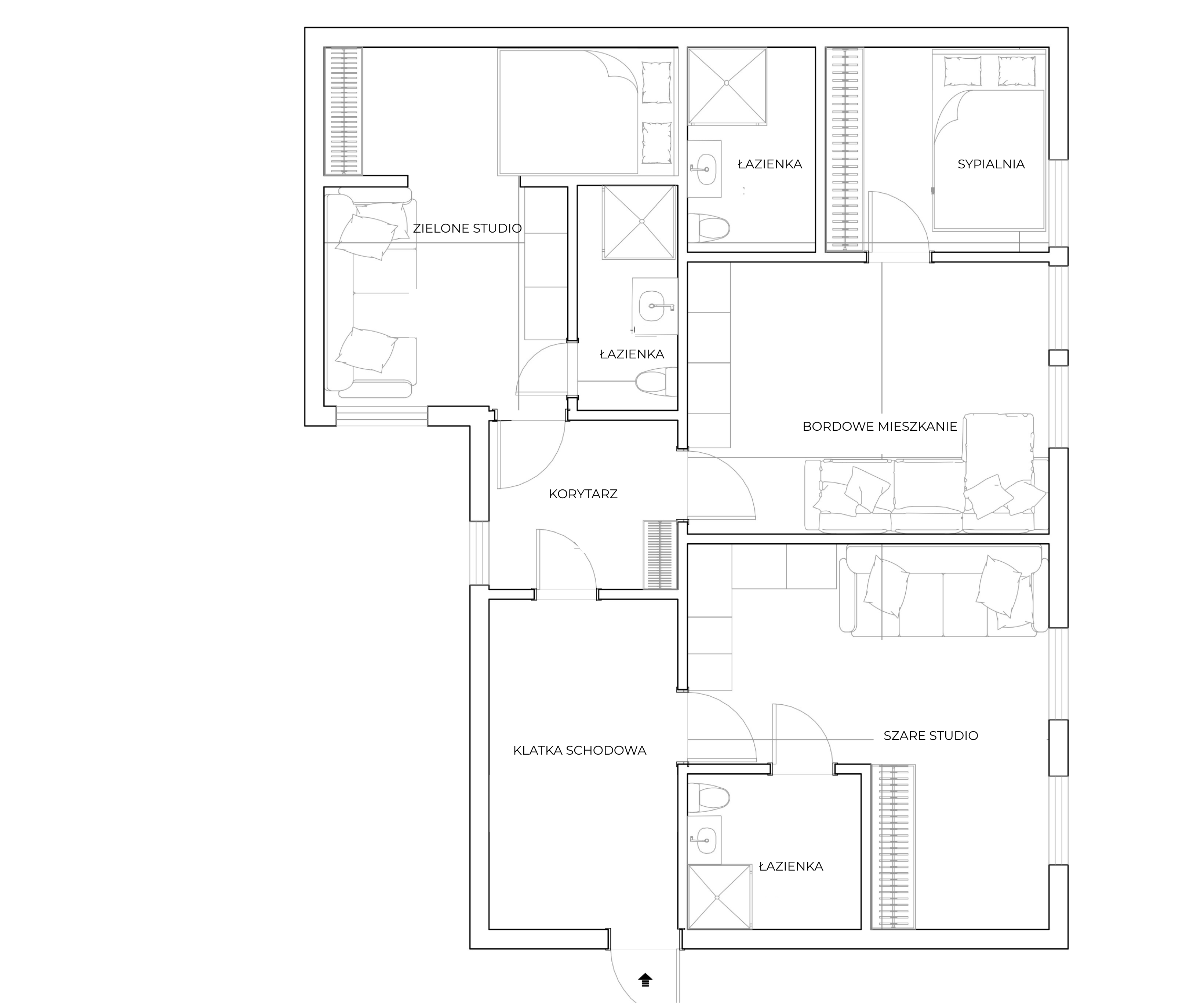
Na sprzedaż atrakcyjne mieszkanie o powierzchni 64,3 m², położone na parterze budynku przy ul. Hołdu Pruskiego w Koszalinie. To idealna propozycja dla inwestora — nieruchomość została podzielona na 3 niezależne, w pełni wyposażone lokale, które aktualnie są wynajmowane – za łączną kwotę 4400,00 zł + czynsz + media. 

Całość posiada jedną Księgę Wieczystą (pełna własność). Szacowana stopa zwrotu wynosi 10% rocznie, a uwzględniając waloryzację w perspektywie 10 lat — inwestycja staje się jeszcze bardziej rentowna.

Mieszkanie przeszło generalny remont, obejmujący m.in. wymianę instalacji elektrycznej i hydraulicznej, montaż podwieszanych sufitów. Każdy z lokali został urządzony w nowoczesnym stylu, z zachowaniem spójnej estetyki i kolorystycznych akcentów.

Z lokalu wydzielono:

Szare studio: pokój z aneksem kuchennym, rozkładana sofa, szafa w zabudowie, łazienka z prysznicem

Bordowe mieszkanie 2-pokojowe: salon z aneksem kuchennym i rozkładanym narożnikiem, sypialnia z łóżkiem i szafą w zabudowie, łazienka z prysznicem

Zielone studio w stylu boho: pokój z aneksem kuchennym, metalowe łóżko sypialniane, łazienka z prysznicem

Zakup tego mieszkania zapewnia generowanie pasywnego dochodu poprzez wynajem. Istnieje również możliwość zarządzania nieruchomością dla nowego nabywcy. 

Ogrzewanie mieszkań oraz wody poprzez piec dwufunkcyjny, który znajduje się w piwnicy. Dzięki czemu właściciel ma do niego stały dostęp.

W każdym z lokali jest zamontowana rekuperacja.

Czynsz do zarządcy – wynosi 500 zł. Dodatkowo płatne media według zużycia.

Możliwa zamiana na inną nieruchomość, również z dopłatą po stronie Kupującego. 

W najbliższej odległości znajdują się przystanki komunikacji miejskiej. Dodatkowo w bliskiej odległości znajduje się piekarnia, supermarkety takie jak Biedronka czy Lidl, przedszkole, szkoła średnia i podstawowa. W pobliżu także wiele punktów usługowych.

Osoby ceniące aktywny tryb życia docenią bliskość terenów rekreacyjnych oraz ścieżek rowerowych. Do nadmorskiej miejscowości Mielno tylko 15 minut samochodem.

Zapraszamy na prezentację!

Pomagamy w uzyskaniu kredytu hipotecznego!

WYKONUJEMY RÓWNIEŻ REMONTY MIESZKAŃ I DOMÓW W WYSOKIM STANDARDZIE NA ŻYCZENIE KLIENTA!

PONADTO DLA NASZYCH KLIENTÓW PRZY PRZEPROWADZKACH OFERUJEMY TANI TRANSPORT.

Powyższy opis ma charakter informacyjny i nie stanowi oferty handlowej w rozumieniu Kodeksu Cywilnego, a dane w nim podane mogą ulec zmianie.

Szczegóły

ID Nieruchomości
500909
Pokoje
4
Rozmiar nieruchomości
64,3 m²
Zaktualizowano na 25 marca, 2026 w 1:46 pm

Adres

  • Miasto Koszalin
  • Województwo Zachodniopomorskie
  • Obszar Koszalin

Informacje kontaktowe

Piotr Woźniak
  • Piotr Woźniak
  • 609 675 935 609 675 935
Wyświetl oferty

Zapytaj o tę nieruchomość

Compare listings

Porównać
Piotr Woźniak
  • Piotr Woźniak